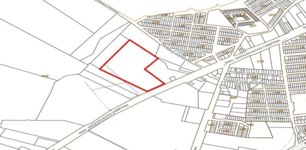
TIERRAS AGRÍCOLAS